

全國免費客服電話 15565221170 郵箱:xxyqjh@163.com
手機:15565221170
電話:15565221170
地址:河南省新鄉市牧野區牧野大廈1309室
淺層砂過濾器是一款用于降低水的濁度,改善水質的專用設備。該型設備廣泛應用在工廠循環冷卻水、農業灌溉用水、市政給排水等多種行業。“淺層”的意思指設備裝填濾料的高度較低,這樣在保證了過濾效果的前提下,使得設備濾速大大增加,意味著更小的體積可以處理更多的水量。淺層砂過濾器擁有獨特的兩位三通閥門,可實現對濾料進行反洗且不用人工操作,降低了使用成本。
產品詳情
淺層砂過濾器是一款用于降低水的濁度,改善水質的專用設備。該型設備廣泛應用在工廠循環冷卻水、農業灌溉用水、市政給排水等多種行業。“淺層”的意思指設備裝填濾料的高度較低,這樣在保證了過濾效果的前提下,使得設備濾速大大增加,意味著更小的體積可以處理更多的水量。淺層砂過濾器擁有獨特的兩位三通閥門,可實現對濾料進行反洗且不用人工操作,降低了使用成本。

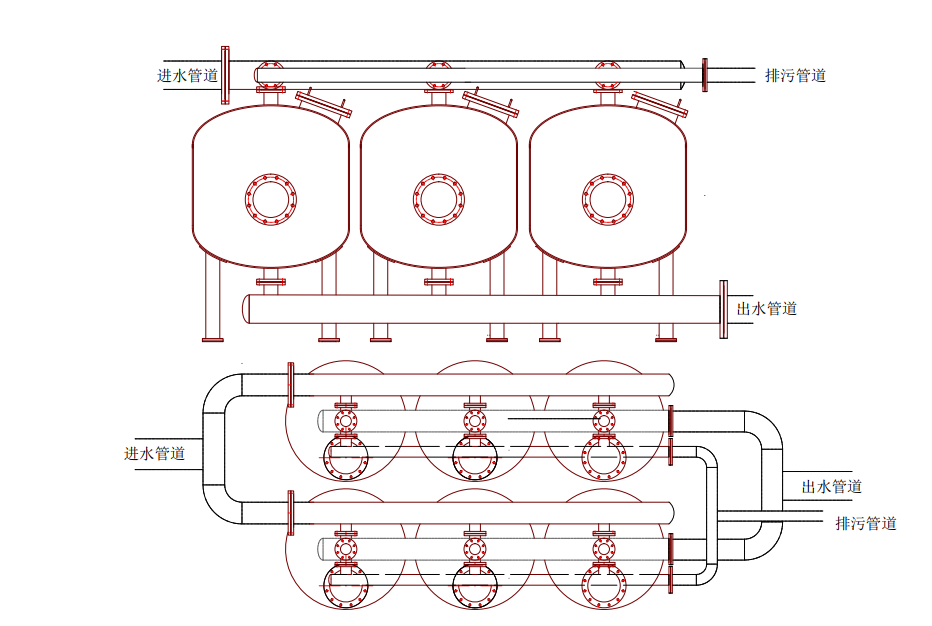
如上圖所示:
設備殼體、進出水管道及排污管道由優質的鋼材、管件焊接加工而成,結構穩固,確保設備正常使用及更長的使用壽命。
兩位三通閥門采用專用電磁閥或電動球閥有效降低閥門故障率。
布水器、集水器采用pp或不銹鋼材質,保證了水流均勻流經濾料,同時保證濾料不會跑出影響水質。
濾料采用優質石英砂,避免在工作中受力變粉末狀影響出水水質。
控制系統采用plc觸摸屏智控系統或太極控制器。plc智控系統更便捷操作,可遠程連接機房實時觀測系統狀態;太極控制器成本低,無顯示狀態功能。

淺層砂過濾器產品參數如上圖: 客戶可根據實際要求進行選型,也可聯系我方技術人員推薦。

工作原理如上圖所示:淺層砂過濾器多臺并聯使用時,無需外接水源進行反洗。設備在反洗時是逐一的對各個罐體進行反洗,一臺清洗時其余幾臺均正常工作,且反沖洗時用水均為其余罐體過濾后的水源。
正常工作的狀態下:三通閥控制所有罐體進水方向開啟,排污方向關閉,水由閥門進水口經布水器均勻流入到濾料中,雜質被攔截在濾料間,凈化后的水由排水管道排出設備。
反洗工作的狀態下:被反洗的罐體三通閥控制進方向關閉,排污方向開啟,其余罐體則為正常狀態,水只能流入其余罐體過濾,過濾后的一部分水則從出水口反向進入到被過濾的罐體中,在水力的驅動下,石英砂與雜質相互沖洗,雜質被水由閥門排污口帶走,此時的布水器攔截濾料。第一個罐體完成清洗后正常工作,開始清洗第二個罐體,一次重復知道最后一個罐體清洗完成,此時反洗工作結束。
| 型號 | YQQSC-40 | YQQSC-50 | YQQSC-60 | YQQSC-70 | YQQSC-80 | YQQSC-100 | YQQSC-120 | YQQSC-140 | YQQSC-150 | YQQSC-180 | YQQSC-200 | YQQSC-240 |
| 罐體直徑 | 1200mm | 1400mm | 1600mm | 1800mm | 2000mm | 2200mm | 2400mm | 2500mm | 2600mm | 2800mm | 3000mm | 3200mm |
| 進出水口徑 | DN100 | DN100 | DN100 | DN150 | DN150 | DN150 | DN200 | DN200 | DN200 | DN200 | DN250 | DN250 |
罐體材質 | 碳鋼/不銹鋼 | 碳鋼/不銹鋼 | 碳鋼/不銹鋼 | 碳鋼/不銹鋼 | 碳鋼/不銹鋼 | 碳鋼/不銹鋼 | 碳鋼/不銹鋼 | 碳鋼/不銹鋼 | 碳鋼/不銹鋼 | 碳鋼/不銹鋼 | 碳鋼/不銹鋼 | 碳鋼/不銹鋼 |
| 罐體防腐 | 油漆防腐 | 油漆防腐 | 油漆防腐 | 油漆防腐 | 油漆防腐 | 油漆防腐 | 油漆防腐 | 油漆防腐 | 油漆防腐 | 油漆防腐 | 油漆防腐 | 油漆防腐 |
| 單臺過濾面積 | 1.1㎡ | 1.5㎡ | 2.0㎡ | 2.5㎡ | 3.0㎡ | 3.8㎡ | 4.5㎡ | 5.0㎡ | 5.3㎡. | 6.1㎡ | 7.0㎡ | 8.0㎡ |
| 過濾速度 | 20-35m/h | 20-35m/h | 20-35m/h | 20-30m/h | 20-30m/h | 20-30m/h | 20-30m/h | 20-30m/h | 20-30m/h | 20-30m/h | 20-30m/h | 20-30m/h |
| 單臺處理量 | 40m3/h | 50m3/h | 60m3/h | 70m3/h | 80m3/h | 100m3/h | 120m3/h | 140m3/h | 150m3/h | 180m3/h | 200m3/h | 240m3/h |
| 工作壓力 | 0.2-0.4MPa | 0.2-0.4MPa | 0.2-0.4MPa | 0.2-0.4MPa | 0.2-0.4MPa | 0.2-0.4MPa | 0.2-0.4MPa | 0.2-0.4MPa | 0.2-0.4MPa | 0.2-0.4MPa | 0.2-0.4MPa | 0.2-0.4MPa |
| 反沖洗強度 | 8-12L/(S*㎡) | 8-12L/(S*㎡) | 8-12L/(S*㎡) | 8-12L/(S*㎡) | 8-12L/(S*㎡) | 8-12L/(S*㎡) | 8-12L/(S*㎡) | 8-12L/(S*㎡) | 8-12L/(S*㎡) | 8-12L/(S*㎡) | 8-12L/(S*㎡) | 8-12L/(S*㎡) |
| 單罐反洗時間 | 60s | 60s | 90s | 120s | 120s | 180s | 200s | 300s | 300s | 300s | 500s | 600s |
| 反洗間隔 | 4-8h | 4-8h | 4-8h | 4-8h | 4-8h | 4-8h | 4-8h | 4-8h | 4-8h | 4-8h | 4-8h | 4-8h |
| 濾料形式 | 石英砂 | 石英砂 | 石英砂 | 石英砂 | 石英砂 | 石英砂 | 石英砂 | 石英砂 | 石英砂 | 石英砂 | 石英砂 | 石英砂 |
| 濾料粒徑 | 0.6-1.2mm | 0.6-1.2mm | 0.6-1.2mm | 0.6-1.2mm | 0.6-1.2mm | 0.6-1.2mm | 0.6-1.2mm | 0.6-1.2mm | 0.6-1.2mm | 0.6-1.2mm | 0.6-1.2mm | 0.6-1.2mm |
| 濾料厚度 | 800mm | 800mm | 800mm | 1200mm | 1200mm | 1200mm | 1200mm | 1200mm | 1200mm | 1200mm | 1200mm | 1200mm |
| 罐體凈重 | 0.4t | 0.5t | 0.6t | 1.5t | 2.0t | 2.3t | 2.6t | 2.8t | 3.0t | 3.3t | 3.9t | 4.5t |
| 罐體運行重量 | 3.5t | 4.5t | 5.0t | 13.5t | 16.8t | 21t | 25t | 27t | 30t | 35t | 40t | 45t |


淺層砂過濾器還可根據客戶需求進行定制,如需安裝位置有防爆需求,也可生產制作防爆型。
相關推薦